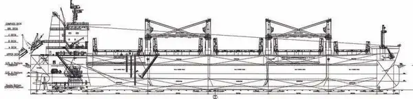
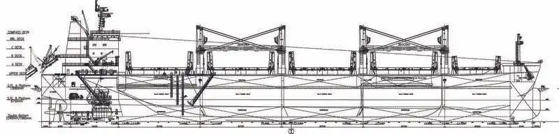
| 63.200DWT Massal Carriers | |
| ID kapal | 9862 |
| kategori | Pembawa akeh |
| Taun mbangun | 2020 |
| Kapal ditambahake tanggal | 2025-10-25 |
| Ditambahake dening | Global Work Boats |
Bobot sing diukur
| DWT | 63200 |
Ukuran kapal
| Length overall (LOA), m | 199.9 |
| ambane, m | 9.9 |
Informasi Tambahan
| Self-propelled | |
| Dek | 1 |
| Kapal sing padha | Nuduhake kapal sing padha |
| Panyuwunan | Panjaluk tuku sing cocog |
| Kirimi E-mail |

